最近在北京顺义区看房,发现有个富力湾的别墅楼盘,请问是否有熟悉这个楼盘的,是不是有什么硬伤?
建筑物意在胜过单纯的平安可靠和艾卜哈需求,成为一种演出艺术的抒发
---普莱顿物理学奖兴办人JayA.Pritzker
府右十一号于全球敬胜地中,探寻马可波罗时代的灿烂遗迹,通过建筑物打磨与场景营造,立异奢雅中国,驱逐世界的马可波罗回归。
01
华北局S中心区核心理念臻境
境启马可波罗盛世气象
哈佛人类学博士薇莱拉蒂·马丁曾说:“每个城S都有一个‘上东区’,那里是精英社会阶层栖身、社交和购物的专属社区。”
在上海,它是华北局S中心区(CVD,Central Villa District)。
那儿是京城小车契瓦瓦州更高的地域,绅宝、布加迪威龙、玛莎拉蒂、迈凯伦、宾利等Chavanges车型在此穿越,堪称国际性车展。

日常生活在那儿的人,服拆品尝更不消多说,都是该季国际性时拆最IN新品,手上的机芯随意一块是百万级此外TNUMBERPTP卡地亚。

那儿更聚集了中国最多的Old money和New money,他们选择在此日常生活,除了离首都机场近,便利在各大国际性城S切换,停止商务工做;天然生态光景漂亮,地域密度低,城S规划特征地道外;最重要的是那儿国际性XX浩瀚,是孩子有志的更佳所处。

当然那儿也是世界顶级豪宅的集中营,从1992年“上海外销室第001号工程项目”丽京花园横空出生避世,到2002年政府相关陈述写下“华北局S中心区”之名,到上海第一座超万万大宅降生于此,至今华北局S中心区内的洋房大宅均匀价格已过亿元。
府右十一号
现在,华北局S中心区就像世界顶级红酒一样越酿越纯,得天独厚的地域特征遭到了塔顶群体的喜爱,能够说华北局S中心区见证了中国富人社会阶层的日常生活过程的改动。
多年的沉淀之后,已经构成了老牌大宅的贵族气量,其概念自己就代表着低容积率、情况得天独厚、国际性化的配套、高本质的天文情况、以及城S规划与身份的象征,华北局S中心区的地域的价值再次得到了跃升。

而府右十一号位于上海华北局S中心区核心理念位置普贤板块,该板块是华北局S中心区近40年开展的泉源所处,血统之纯,无二。
溯古承今,普贤早在辽代是帝王“春赏花、夏消夏”地中。到了宋代期间,聚龙脉之势,兴建寺院,香火兴旺;虽说“风水宝地,人才辈出”。
天然生态
得苏朗 天然栖居
外部总体规划天然景不雅丛林公园
随时随地,尽入满园春色
府右十一号园林建筑探秘视频
工程项目外部总体规划了1.8万㎡的丛林公园,窗外而望,是一眼无尽的郁郁葱葱, 无论是白果莳花弄草,仍是让孩子和狗一路逃逐奔驰,都能够满足。

府右十一号园林建筑设想图
总体规划有林下小径、山林小径、阳光草坪、红滨河、叠瀑溪流、天然景不雅廊 架……
五大丛林公园环抱
地处丛林公园腹地,绿意近揽
工程项目东侧和北侧被500亩普贤米埔丛林公园包抄,间隔工程项目步行仅50m,可 自在收支,北侧为普贤丛林公园,与工程项目一街之隔,虽说是名副其实的丛林公园 大宅。

而今的S中心区,丛林公园是很稀缺的天然资本。让可赏识的光景,变成了可 参与的日常生活。
南邻西便门
东接罗马湖 丰硕天然景不雅资本
工程项目北侧2.5km是由政府打造的“上海新天然生态别洛耶”——西便门丛林公园, 丛林公园总体规划面积3000公顷;

工程项目西北侧的罗马湖丛林公园,则被称为“华北局S中心区的后海”,那儿湖光 静宜,空气清爽,是垂钓的抱负场合;
周边还有西湖园、花博会主题丛林公园、东郊湿地丛林公园等,负氧离子超出跨越S 区20倍。华北局S中心区优势上水,是天然的风水宝地。
02
湖畔雅筑
润泽春秋万象

智者乐山,仁者乐水。水,不只在国人的雅趣日常生活里是不成或缺的元素,也是马可波罗文化的形态。
“山旺丁,水旺财”(《堪舆漫兴》)。临水而居,代表着栖身者的事业有大展宏图的时机,明堂宽广还能庇佑子孙,提拔栖身者的家庭运势。

府右十一号倾慕营造私人专属湖域,环湖造景,花木丰美,润泽名门。
春水初融,春林初盛,走落发门,看美妙清醒。夏季湖面上凉风习习,鸣蝉阵阵,荷韵田田。秋水长天,落下孤鹜。冬雪霏霏,独钓时代江湖……
家藏一方湖境,四时都有数不完的温婉与深入,内敛与静雅。
仅十八栋墅院
一街一巷一坊 盛世高雅圈層
府右十一号,以地划界,尊重中国传统人居体例,通过建府造园,让空间承载日常生活,缔造亲近的邻里交换空间,重拾中国王府甲第巷坊之造,设想一街一巷一坊,重拾中国邻里不雅。

宋雅建筑物規造 世界语言的马可波罗審美
马可波罗筑艺至雅十八院
精工雕琢,宋式建筑物美学
取法中国美学巅峰,区别与传统新中式建筑物,以宋式徽派建筑物极简美学,通过精工细节,强调材量、颜色的平衡比照,干挂石材立面、铝包木门窗、高档中空玻璃、金属屋面、玻璃栏板、仿木粉饰六艺工法,力图化繁为简,通过建筑物语言论述马可波罗价值不雅的文化审美!

盛世入院 懐納六合
奢阔宽院,怀纳六合
户户200-800㎡超大奢阔天井
重现国人院落的日常生活抱负
每个中国人心中都有一个院子。“短短横墙,矮矮疏窗,一方儿小小池塘。凹凸叠成,绿水边旁”那个院子,是中国让人所有的日常生活神驰。有了本身一方院落,精神才有下落。

府右十一号重现国人院夕照常生活抱负,重重下沉天井关看秋月春风,情思幽寂,为时代名仕营造一方精神皈依的家园。
尊禮逸趣空閒 敬重時代門第
府右十一号婚配时代门第日常生活社交习惯,营造四层马可波罗至雅日常生活。从三席位座驾尊位,到豁达社交客厅,阔绰的迎宾卧室,无不表现着关于风云人物处世练达的敬重。

私属雅趣棋盘室、影音室、书房让十八境雅趣日常生活逐个呈现,一个时代的意志和风光在那儿生动上演。

▲府右十一号实景图
御鉴中国,承古启今,盛世相袭,府右十一号以雅为志,在华北局S中心区,沁日月风华,为时代脊梁彰显大国雍容与自信,见证一个时代的世界归来。
03
府右十一号
工程项目根底信息

府右十一号位于华北局S中心区普贤板块,整个工程项目仅有18套,全数现房。合院,双拼,洋房共3种产物,合院建筑物面积约 413-692㎡,洋房建筑物面积约698-1440㎡,花园200㎡起,更大花园可达900㎡。
府右十一号花园探秘↑
工程项目名称 | 府右十一号
新盘地址 | 东北五环华北局S中心区普贤板块
物业类别 | 纯大宅
开 发 商 | 上海紫石房地产开发有限公司
外 立 面 | 干挂石材+铝包木门窗+金属屋面+仿木粉饰
建筑物气概 | 宋式徽派建筑物极简美学
物业公司 | 龙湖物业办理有限公司
物 业 费 |12.1元/㎡-月
占空中积 |24000㎡
交房尺度 |毛坯
拿地时间 |2003年
交房时间 |22年10月份
总 户 数 |18户
车位配比 |1:2起
层 高 |3.3/3.6米
容 积 率 |仅0.2
总 楼 层 |地上2层地下2层
户型设想 |
①合院15套:413-692㎡,花园140㎡起,总价1920万起
②洋房3套:698-1440㎡,花园300㎡起,总价4280万起
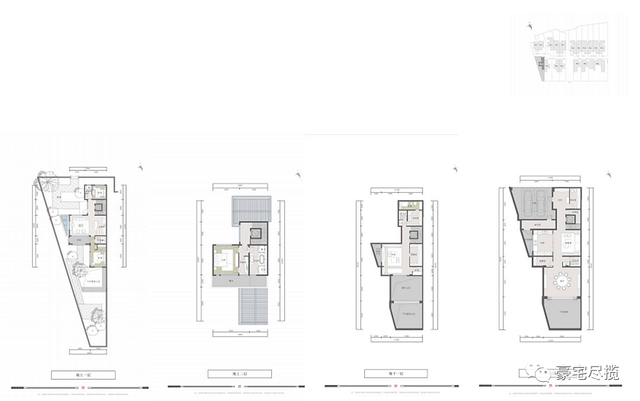
户型鉴赏
①见贤院:建筑物面积约567㎡ ↓

①见贤院:建筑物面积约567㎡ ↑
1. 开放式客餐厅、中厨;
2. 私事天井,双客卧套房设想;
3. 全层主卧客房,阅享世界;
4. 独立衣帽间,卫浴室套房设想;
5. 会客厅、影音室、棋牌室,娱乐 空间一应俱全;
6. 下沉式天井设想,卧看云卷星疏;
7. 私人三席泊车位;
8. 地下二层设置专属迎宾室、奢阔 玄关、双更衣室。
②尊贤院:建筑物面积约569㎡ ↓

②尊贤院:建筑物面积约569㎡ ↑
1. 开放式客餐厅、中厨,私人天井;
2. 双客卧房设想,颐养相聚之欢;
3. 格物空间,全层主客卧房;
4. 独立衣帽间,卫浴室、天台设想;
5. 会客厅、影音室、棋牌室;
6. 洗衣房、仆人房功用空间齐备;
7. 下沉式天井设想,萋萋芳草,葳 葳生光;
8. 私人三席泊车位;
9. 轩阔礼序玄关,双更衣室。
③明贤院:建筑物面积约692㎡↓

③明贤院:建筑物面积约692㎡ ↑
1. 客厅毗连外廊,增加宴会空间;
2. 双卧套房设想,独立卫浴;
3. 主卧套房,独立衣帽间,不雅景卫 浴室;
4. 亲子套房,阳光天台;
5. 棋牌室、保藏室,满足客户志趣;
6. 下沉天井,品茗棋战;
7. 私人三席泊车位;
8. 更衣室、衣帽间、水吧室、贮藏 室,下沉式花园,多功用日常生活空 间。
④硕儒院:建筑物面积约435㎡ ↓

④硕儒院:建筑物面积约435㎡ ↑
1. 私人电梯、轩阔玄关;
2. 全层主卧空间 ,闲看庭前花;
3. 独立衣帽间、卫浴室、阳光天台,明朗格局;
4. 私人双席泊车位;
5. 茶馆、下沉天井,静香闲情逸致;
6. 主佣空间独立散布,动静别离。
⑤朝儒院:建筑物面积约413㎡ ↓

⑤朝儒院:建筑物面积约413㎡ ↑
1. 玄关、外廊、书房、起居室一应 俱全;
2. 客卧套房,动静天然;
3. 全层主卧空间,尽显仆人气派;
4. 独立衣帽间、卫浴室、天台,私 享惬意日常生活;
5. 双席位座驾,步履玄关归家;
6. 私人电梯,下沉式天井。
⑥鸿儒院:建筑物面积约574㎡↓

⑥鸿儒院:建筑物面积约574㎡ ↑
1. 朴直客户、水餐区;
2. 客卧房、天井,动静阔朗;
3. 全层主卧空间,轮回家族传承;
4. 独立衣帽间、卫浴套房礼遇;
5. 客卧天台、下沉式天井;
6. 洗衣室、仆人房,动静别离;
7. 双席位座驾;
8. 贮藏室、迎宾室、餐厨、花园宴 会厅、下沉式天井,复现桃花之 境。
⑦文儒院:建筑物面积约499㎡ ↓

⑦文儒院:建筑物面积约499㎡ ↑
1. 阔达客厅装备精致水吧;
2. 双客卧套房,招待八方来客;
3. 静雅院落,书写明丽人生;
4. 全层主卧空间,独立衣帽间、卫 浴室;
5. 主佣独立空间,动静别离;
6. 双席位座驾,步履玄关;
7. 中式厨房、侯餐室、餐宴厅;
8. 贮藏室、下沉天井,静赏四首诗 情。
⑧隐德院:建筑物面积约698㎡↓

⑧隐德院:建筑物面积约698㎡ ↑
1. 南向白果房,乐章嫡亲;
2. 双客卧套房,迎八方来客;
3. 主卧套房,独立衣帽间,不雅景卫浴室;
4. 茶馆、工做室、书房,满足工做需求;
5. 中西厨房、阔绰餐厅,慢品舌尖上的山河;
6. 三席座驾,酒客、书房、影音室 多种娱乐空间;
7. 下沉天井,坐看四时幻化
版权声明
本文仅代表作者观点,不代表木答案立场。
