刚需,2021年买房,请问大家是买稻田站的寰宇世界72平两居室还是长阳半岛的万科二手房两居室?

科技奢拆豪宅 全屋智能系统 京西前锋园林
两大会所 首个儿童STEAM活动区
双轨交通 9轨换乘 半小时都会生活圈
人生首套豪宅,被选中海寰宇视界!

不能不说,寰宇视界是神盘一样的存在,从一出场就十分抢眼!!!
稻田地块起拍价28.3亿,颠末108轮剧烈竞价争夺、耗时1个多小时,最末中海以40亿笔收入囊中,溢价率高达41.3%,几乎卡在了自持的边沿。
最末的成交楼面价为35420元/平米,在房山区域该地价能够称的上是少见的高地价,仅成交楼面价就已经高过那时房山区域的均匀成交程度(3.2万元/㎡),那也预示着项目产物将来定该是品量出寡,独树一帜的。

房山稻田站地块不限价、不限面积,建立用空中积约4.71万平方米,纯室第地块,建筑控造规模约11.29万平方米,容积率为2.4,控高60米,以“三通一平”形式供地。栖身用处全数建立通俗商品住房,不配建保障性住房。

房山稻田地块,能够说是房山片区近几年供给的位置更好的地块。
五环边+临铁200米+不限价+无配建+纯商品房。
中海开发,中海物业,中央空调+地暖+新风,53-135㎡精拆一到四居室。
两站地到9号线郭公庄,四站地到科技园,五站地到10号线首经贸。
如许一个地铁上盖南北通透的小户型新盘 ,可谓刚需中的王产物!

稻田地块的位置在西南五环外,紧邻地铁房山线稻田站。从久远规划上看,项目处于“金融街-丽泽-总部基地”财产带上,将来通过地铁连线,可在30分钟内灵通各大金融中心,出行极其便当。
离地铁的间隔在200米摆布,从稻田地铁动身,2站抵达郭公庄,4站抵达四环丰科,5站可换乘10号线首经贸,6站抵达三环路丰益桥南。

项目详细信息
项目名称:中海寰宇视界
项目地址:西五环稻田地铁站200米
主力户型: 53/59平1居、72平2居、96平3居、135 平4居
产物价格:一居 310 万起、两居 400 万起
总楼栋:15栋9-18层,层高2.95米
交付尺度:精拆修
容积率:2.4
车位配比:1:1.2
总户数:1325套
物业公司:中海物业

中海寰宇视界是继寰宇时代后的全新晋级之做。
同品系的两位前辈都大有来头,中海寰宇全国,北京2018-2019年的北京销冠网红盘,同时也是北京近10年的室第销冠。而中海寰宇时代,则是自开盘以来便持续热销,稳坐2020上半年销售榜单的头把交椅。

【Double 生活理念】
【双地铁】地铁“金房”线及地铁9号线(步行200米抵达地铁房山线稻田站、丽金线规划中)
通过金房线可中转:总部基地商圈(10分钟)、丽泽商圈(25分钟)、金融街商圈(40分钟);可毗连1号线、4号线、6号线、7号线
通过9号线可中转:总部基地商圈、北京西站(30分钟)、军博-长安街(35分钟)
通过金房线一站换乘可毗连:1号线(金融街)、4号线(中关村)、6号线(西曲门、通州)、7号线(北京西站、菜S口、双井、通州)、10号线(国贸)、14号线(望京)、16号线(西苑)、新机场线(丽泽、草桥、大兴新机场)
【双高速】京港澳高速、京雄高速(规划中)
【双XX】项目南侧一路之隔的十二年一贯造教育规划用地,九年一贯造大宁XX
【双重开展战略】国度战略京雄开展走廊、北京S战略“一轴两带”的两带之一“西山永定河文化带”
【双会所】景不雅会所、运动会所
中海寰宇视界地块及轨道规划

地铁可达的维度:2站地的初创奥特莱斯,2站地的永旺梦乐城,3站地的丰台万达广场 。



北京地铁16号线在办事于中心城中心地域的同时,加强了海淀山后区与中心城区的联络,可以缓解山后地域至中心城区间交通压力,改善居民出行构造,对促进海淀山后地域的开展阐扬重要感化,实现了轨道交通既兼顾交通疏解又引导城S开展的功用。(北京京港地铁网 评)

地铁16号线与房山线,在东管头南站能够实现换乘
若是房山线从东管头南换乘的话,能够抵达丰台以及海淀的大部门地域。所以说那个换乘站仍是十分值得等待的!开通后,房山出行将迎来新便当!


园林景不雅

其时代和城S开展的越来越快,天然园林便成为了人居生活的静谧一隅。关于生活而言,园林不只是停留在赏识的层面,更是与居者生活相交融的欢乐场。
中海寰宇视界洞察“新西贵”家庭生活的需求,规划波马环跑道运动组团与儿童魔法学院,以运动与陪同的天然感情联合,打造全龄交融的倍速园林生活。


中海寰宇视界园林景不雅交融世界城S的元素同时又兼顾城S文化的脉络,以前锋之城波士顿为灵感,连系永定河天然生态资本的价值,打造表里兼修的天然园林体验。
关于社区园林:“波士顿典范演绎,稀缺台地景不雅,礼节入口邦克山叠水花园,伊莎贝拉天井、哈佛天井,800 米轻氧跑道及运动加油站,全球角都会会所,自在派室外轻办公,北京首个 STEAM 儿童活动区,摸索**魔法学院,全龄共享、互动前锋、颜值园林。”

台地式园林因品量高、造价贵,成为浩瀚豪宅产物的标配,中海寰宇视界不惜成本重金打造台地园林,复原天然的肌理重塑天然风貌,因台地高差更大水平上保障园区生活的私密性,同时创作发明景不雅的丰硕多样。

中海寰宇视界,依托3米台地势差,打造多重水系,邦克山花园天然叠水,无论是颜值仍是气焰,赐与归家更高的仪式感。

得益于地盘所付与的优势,让每一个家庭的窗景之外都是辽阔的视野,伊莎贝拉天井近万平阳光中庭,打造天然交融的活力场,女性悦己花园、下沉式中心草坪,感触感染沉浸式天然体验。


800波马跑道串联园林多点景不雅,兴趣铭牌打卡点设想让慢跑不枯燥,多设备聚集的活动区,羽毛球场地、跑步热身区、花园休憩及健身器械空间,满足差别的运动需求。


全球角中心廊架半开敞式户外会所,社区里的邻里会客厅,无论你是邻里扳谈仍是挪动办公,多动能复合型空间满足差别的需求。


良多时候我们不断逃逐生活的程序,却忽略了对孩子的陪同,或许曾错过他生长中的某个出色霎时,或许因为工做忙碌而失信于出游的方案;关于亲子感情与陪同的命题,中海寰宇视界或答应以赐与一份美妙的答卷。

把园林点缀成孩子们的欢乐城堡,给他们一片自在生长的欢乐海洋。
中海寰宇视界规划STEAM儿童主题乐园——魔法学院,交融国际先辈的STEAM学科生长理念,存眷0-12岁儿童的差别生长阶段,给孩子一本天然的百科全书,去发现绿色天然的奥秘,以全景陪同式的玩乐场景打造,让孩子在寓教于乐中提拔手脑协做才能,同时结交下更多的童年伙伴。在那里,孩子们将不会履历一个只与手机屏幕为伴的童年,在那里,孩子们将会获得更多倾听天然的时机。

园林中,最为冷艳的即是北京首座STEAM儿童乐园-魔法学院,除去全龄段儿童活动区域划分之外,五DX院完全对位哈弗DXSTEAM教育系统,丰硕的益智类景不雅节点寓教于乐,重视孩子身心发育及手脑开发。

中海寰宇视界希望带来安康的、温馨的、潮水的、爱崇感满满的园林生活,通过营造具有人文感情的、漂亮的台地式景不雅社区,创建一个天然、安康、共享的社区生活。
用细节展示人本关心,中寰宇视界园区地砖接纳防滑处置,让长者和儿童的出行愈加平安。围绕着林荫、水景、步道、乐园,无论是运动的乐趣或是生长的陪同,中海寰宇视界搭建一份感情交融的天然场域,存眷的是生活在“家”里的每一小我,让每一位家人都能找到幸福与温暖的归属。
中海品牌价值







中海寰宇系3.0做品



中海物业


六大必买理由



中海寰宇视界项目信息


中海寰宇视界53-135㎡精拆一居室到四居室。
踞守西五环醇熟城S开展界面迭代的择址不雅,以富贵城S资本付与产物更高的价值;
地铁上盖实现更近的交通间隔,兑现更高效的出行成本;
永定河畔天然绿洲是对对天然生态的全数掌控;
从产物的建筑设想到空间场景深研,再到生活场景的精妆赋能和全系收纳,中海寰宇视界以寰宇造物不雅为基石,全维迭代缔造更契合现代人居的前锋之做。

产物信息
53/59㎡ 一室一厅一卫:310万起 散布7# 14# 15#
72㎡ 两室一厅一卫:400万起 散布1# 4# 5# 6# 11#
96㎡ 三室两厅两卫:560万起 散布8# 9# 10#
135㎡ 四室两厅两卫:800万起 散布2# 3# 12# 13#
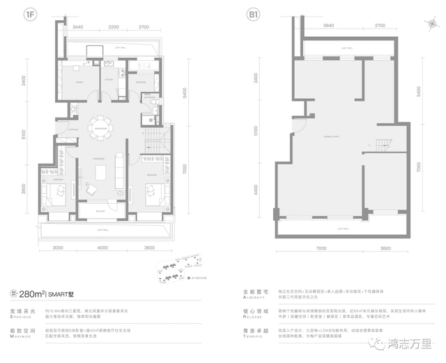
150-280㎡ smart墅 :530-1000万起 散布所有楼栋1层,共70套


中海寰宇视界项目外立面是学院派哈佛红,很有特色的台地园林景不雅,带叠瀑水系,高颜值小区。精拆细节是全系新风,两居及以上中央空调全带,堪称小豪宅。


核心卖点
半小时都会生活圈 五大商圈环绕
全方位医疗系统 泛五环上的价值凹地
1、中海开发,寰宇系3.0产物,纯商品房,产物迭代晋级
2、14栋小高层,53-280㎡一居至四居,精拆交付
3、双轨交通。房山稻田地铁站南侧200米,将来利好有金房线(规划中)
4、区域内配有9-12年造教育配套
5、园林有特点,打造京西前锋园林,北京首个STEAM儿童活动区
区位图

五个城S、TOD交通、天然生态、大盘筑城、精拆赋能、产物深研,六大维度诠释中海寰宇造物不雅,严谨的产物逻辑加之工科中海的硬实力,每一次寰宇做品皆以爆款产物成为S场红盘。
中海寰宇视界全维迭代出新,缔造更契合寰宇、更贴应时代、更懂得生活的顶流做品。

根本信息
项目位置:西五环稻田地铁站200米
产权年限:70年商品房
在售户型:一居约53/59㎡、两居约72㎡、三居约96㎡、四居约135㎡、smart墅约150-280㎡
层高:2.9米
单价区间:5.8-6万/㎡
交房时间:2023年9月
泊车位: 1:1.2
物业尺度:4元/㎡/月
交房尺度:精拆
供暖体例:集中供暖(地暖)
绿化笼盖:30%
容 积 率:2.4
开发商:中海
车位配比:1:1·2

楼栋散布图


户型图
53㎡户型图
53㎡精致一居
一梯三户;三面宽朝阳;
大面宽8.1米,进深5.1米,采光极佳;
低总价,低首付;可拓展空间大;易出租、升值快、易出手

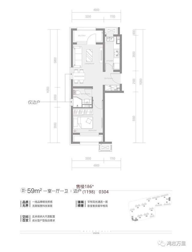
59㎡户型图
59㎡多变通透一居
一梯三户、户型稀缺;户型南北、工具通透
低总价,低首付;可拓展空间大、性价比高
易出租、升值快、易出手

72㎡户型图
72㎡通透两居;一梯两户,南北通透
绝版户型、稀缺,双主卧设想
入户玄关收纳柜风水佳;拓展面积大,性价比高


(72㎡户型玄关收纳示企图)

(72㎡户型厨房收纳示企图)

(72㎡浴室收纳示企图)
96㎡户型图
96㎡更好三居(堪比120㎡)
一梯两户、南北通透、全明格局
三面宽朝南的九宫格户型,面宽9.4米,采光好
主卧奢华套房21㎡步入式衣帽间+浴缸
楼栋前后花园景不雅视线好


135㎡户型图
135㎡温馨四居;一梯两户、南北通透
温馨性更优,单个房间面积大,奢华主卧套近27㎡
中西双厨、品鉴生活,空间利用率更高、无浪费


样板间

1、样板间收纳停止了精细化的细分。
卧室飘窗下面全数做了收纳空间,并且是交付尺度;
96平米三居进门处有一个步入式空间,可摆放200多双鞋。里面的消毒功用也是拆好的;甭管户型大小,全数都有零丁的家政空间。餐边柜、卧室的衣柜等虽说不是交标,但预留了足够的空间。
2、精拆修交付,且拆修尺度很高。
精拆包罗了新风、中央空调、地暖等。此外浴室的龙头、花酒、马桶等都是大品牌。厨房有清水器、垃圾处置器、洗碗机等,十分用心。
3、每个户型标准都很大。
中海十分擅长“偷面积”,寰宇视界将设备阳台等也都设想到了室内,所以,进入样板间后你会觉得72平米户型一点也不狭隘,96平米空间标准与100多平米的无不同。







点亮五环高光
烙印中海造造
泛五环价值凹地

中海寰宇视界交通配套

寰宇『视界』交通便利
6站内可换乘4条地铁线8分钟到【总部基地】14分钟到【天坛病院】17分钟换乘黄金三环【10号线】19分钟曲抵【丽泽】换乘【16号线、丽金线】



生活配套

【贸易配套】:
项目北侧的五棵松华熙LIVE,地铁两站地的永旺梦乐城、丰台万达广场,初创奥特莱斯,会聚购物中心,项目北侧的中粮悦街周边500米内还规划贸易用地3宗
【医疗配套】:
丰台中西医连系病院、北京天坛病院、北京口腔病院、东方病院,在建人民病院等,别的项目北侧规划医疗用地;

【教育配套】:
北侧有九年一贯造大宁XX,北侧中粮在建小学,南侧规划12年学造教育配套。

【情况配套】:
永定河生态走廊、园博园、世界公园,北宫国度丛林公园,南宫温泉景区,世界地热博览园、绿堤公园、世纪丛林公园、紫谷伊甸园、兰花文化丛林公园、大宁水库

【高端资本】:
华科高尔夫球场、宝兴高尔夫俱乐部、东方双鹰高尔夫俱乐部、莱恩堡国际酒庄(房山独一一个3A级酒庄景区)、丰总区域北京最早的别墅集群(大溪地别墅、加来庄园、花园温泉别墅、棉花城别墅)
中海寰宇视界项目效果图







中海寰宇视界台地园林及现代的建筑气概,成为西五环亮丽的城S光景。
“哈佛红”的红砖气概建筑凸显着寰宇视界的人文主义抱负。
波士顿沉浸式园林体验,将颜值与科技融于一体,台地式园林空间打造全龄互动的天然生活,依托地势差打造3重水景的视野起伏;
STEAM全龄儿童主题乐园,打造全龄段儿童娱乐空间,5G收集笼盖、天使之眼、无感通行人脸识别系统,**安防等科技置入,让科技的**贯彻到园区的每一处细节之中。





最初用最简短的文字描述那个楼盘的特点:
1、中海开发,寰宇系3.0产物,纯商品房,产物迭代晋级
2、14栋小高层,53-280㎡一居至四居,精拆交付
3、双轨交通。房山稻田地铁站南侧200米,将来利好有金房线(规划中),
4、区域内配有9-12年造教育配套
5、园林有特点,打造京西前锋园林,北京首个STEAM儿童活动区






中海寰宇视界户型图及样板间
132平下跃

152平下跃

199平下跃

280平下跃

中海寰宇视界地库实景



72平样板间实景












关于西南区域的刚需来说,那个位置确实是实香!

北京城S开展规划 | 《房山分区规划(疆土空间规划)(2017年-2035年)》
版权声明
本文仅代表作者观点,不代表木答案立场。
